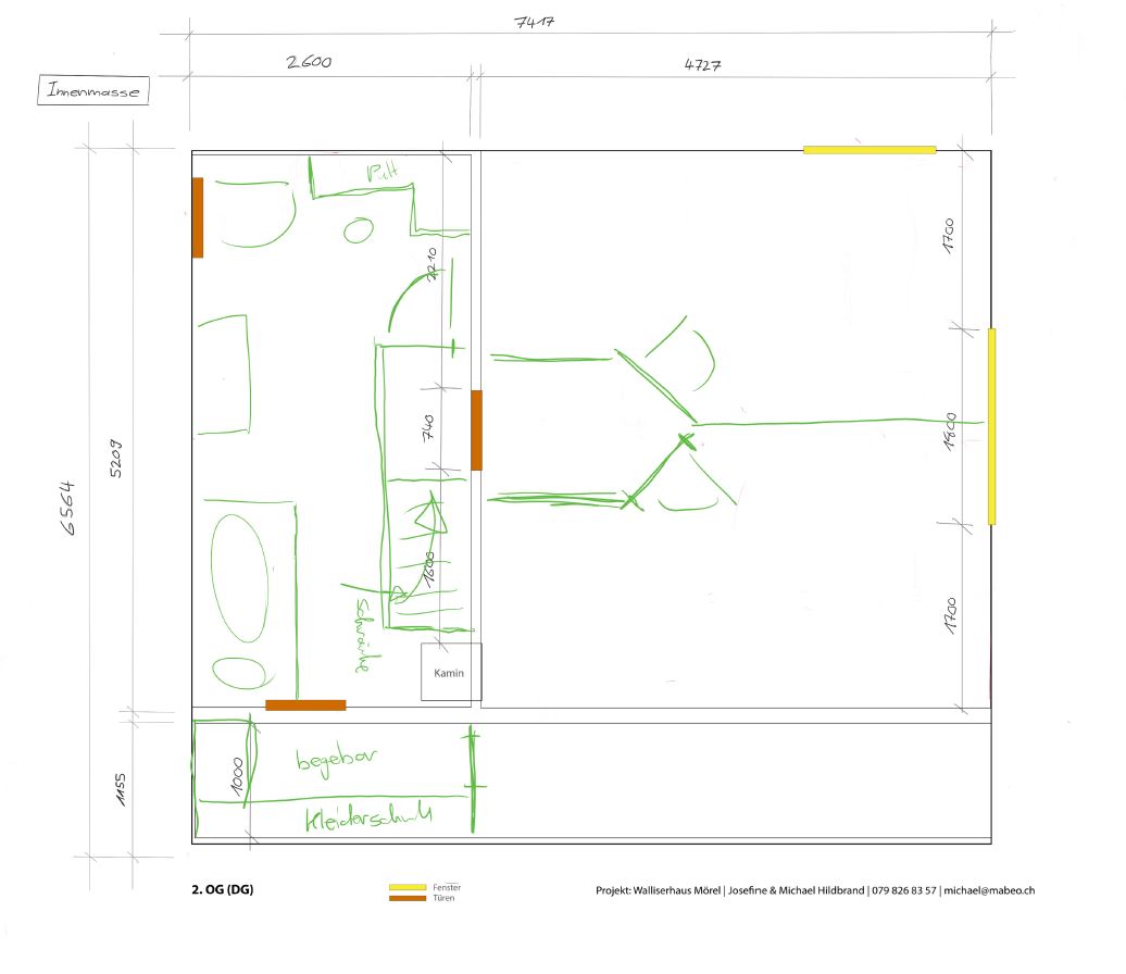
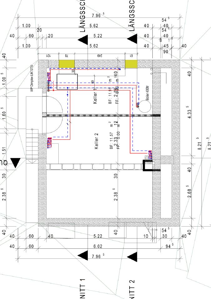
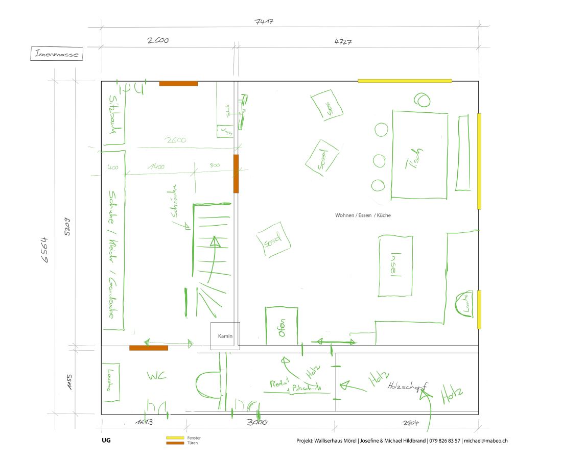
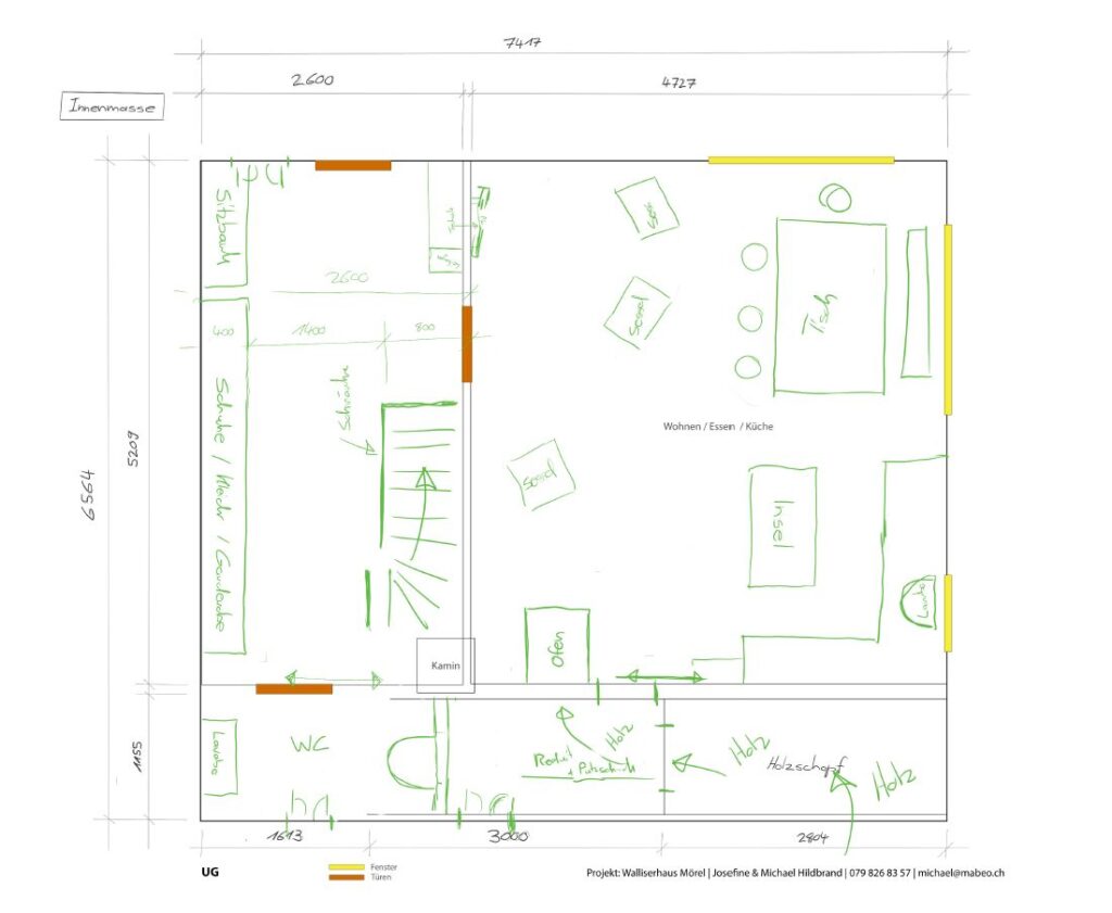
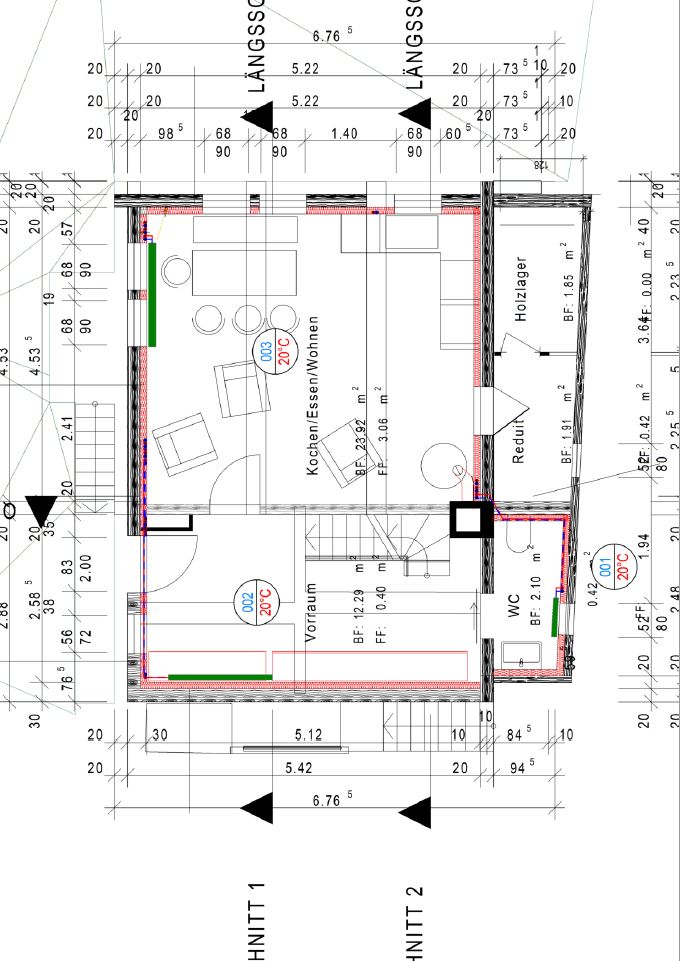
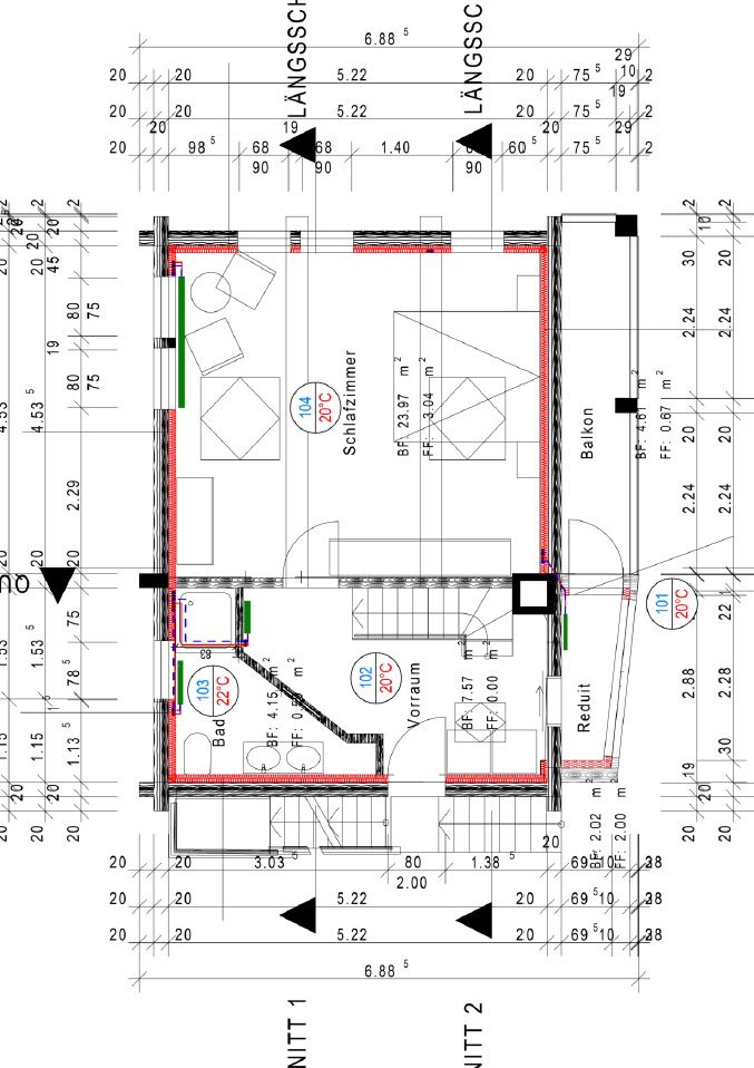
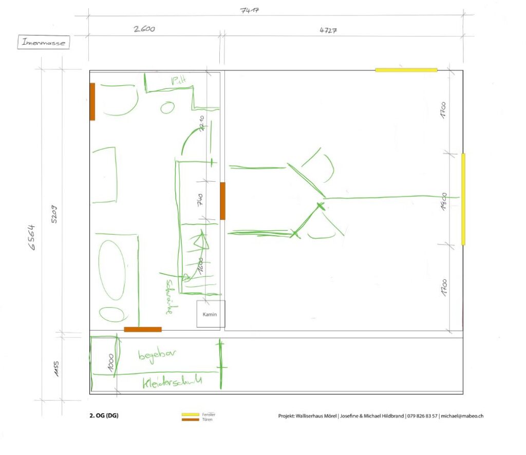
Abmessen und Pläne erstellenvon Michael HildbrandJuni 20, 2020Mai 15, 2021 Leider hatte unser erster Planer beim messen versagt. Daher musste ich selber nachmessen und habe die Pläne dann sonst in Auftrag gegeben. Vorerst habe ich die Pläne selbst erstellt Und nun haben wir die Pläne vom Heizungsplaner erstellen lassen. Schreibe einen Kommentar Antwort abbrechenDeine E-Mail-Adresse wird nicht veröffentlicht. Erforderliche Felder sind mit * markiertName * E-Mail-Adresse * Website Kommentar Meinen Namen, meine E-Mail-Adresse und meine Website in diesem Browser für die nächste Kommentierung speichern. Vorheriger BeitragDer Frust bei der EnergieplanungNächster BeitragWie alt ist das Haus eigentlich wirklich?